Hoofdafbeelding Ds. Christophoripad 5
Foto
Foto 2
Home Aanbod Ds. Christophoripad 5

Ds. Christophoripad 5

9901 TH Appingedam

€ 495.000,- k.k.

Onder de rook van Appingedam treft u "op Jukwerd" op werkelijk fantastische locatie deze keurige vrijstaande woning met 4 slaapkamers op een kavel van maar liefst 2.520 m². De Ds. Christophoripad 5 heeft een magistraal uitzicht vanuit de woonkamer en de woonkeuken over de landerijen en is naar onze mening een echte buitenkans op de woningmarkt! Niet alleen vanwege de locatie, ook op het gebied van duurzaamheid is met een vernieuwd dak, een hybride warmtepomp en de aanwezigheid van zonnepanelen al een slag geslagen. Bent u geïnteresseerd? Maak dan gauw een afspraak met ons kantoor en onze makelaar zal u rondleiden op deze prachtplek!

Jukwerd is een klein wierdedorp zonder voorzieningen en is gelegen op ca. 1,5 km afstand van Appingedam welke naast de stad Groningen, één van de 2 middeleeuwse steden die de provincie Groningen rijk is! Wonen in Appingedam betekent niet alleen wonen in moderne nieuwbouwwijken of sfeervolle stadsgebieden. Het betekent ook: zeer complete onderwijsvoorzieningen met een gevarieerd winkelaanbod en zeer aantrekkelijke recreatiemogelijkheden, prima wegverbindingen en uitstekend openbaar vervoer.

Indeling:
Begane grond:
Entree/hal met toilet, meterkast, toegang naar de kelder (ca. 2,5 m²) en opgang naar de verdieping, woonkamer (ca. 29 m²; met vaste kastruimte), badkamer (ca. 7 m²; met ligbad, douchecabine en dubbele wastafel), woonkeuken (ca. 16 m²; met hoekopstelling voorzien van koelkast, oven, 4-pits gaskookplaat, afzuigkap en witgoedaansluiting), bijkeuken (ca. 4,5 m²) met achterentree, stookruimte en doorgang naar de aangebouwde garage (ca. 25 m²).

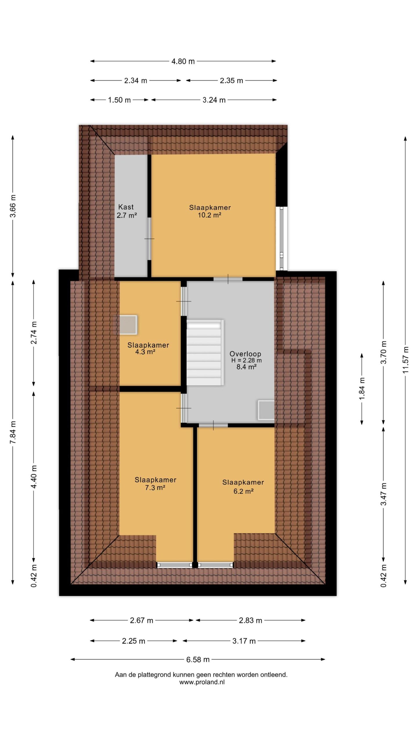
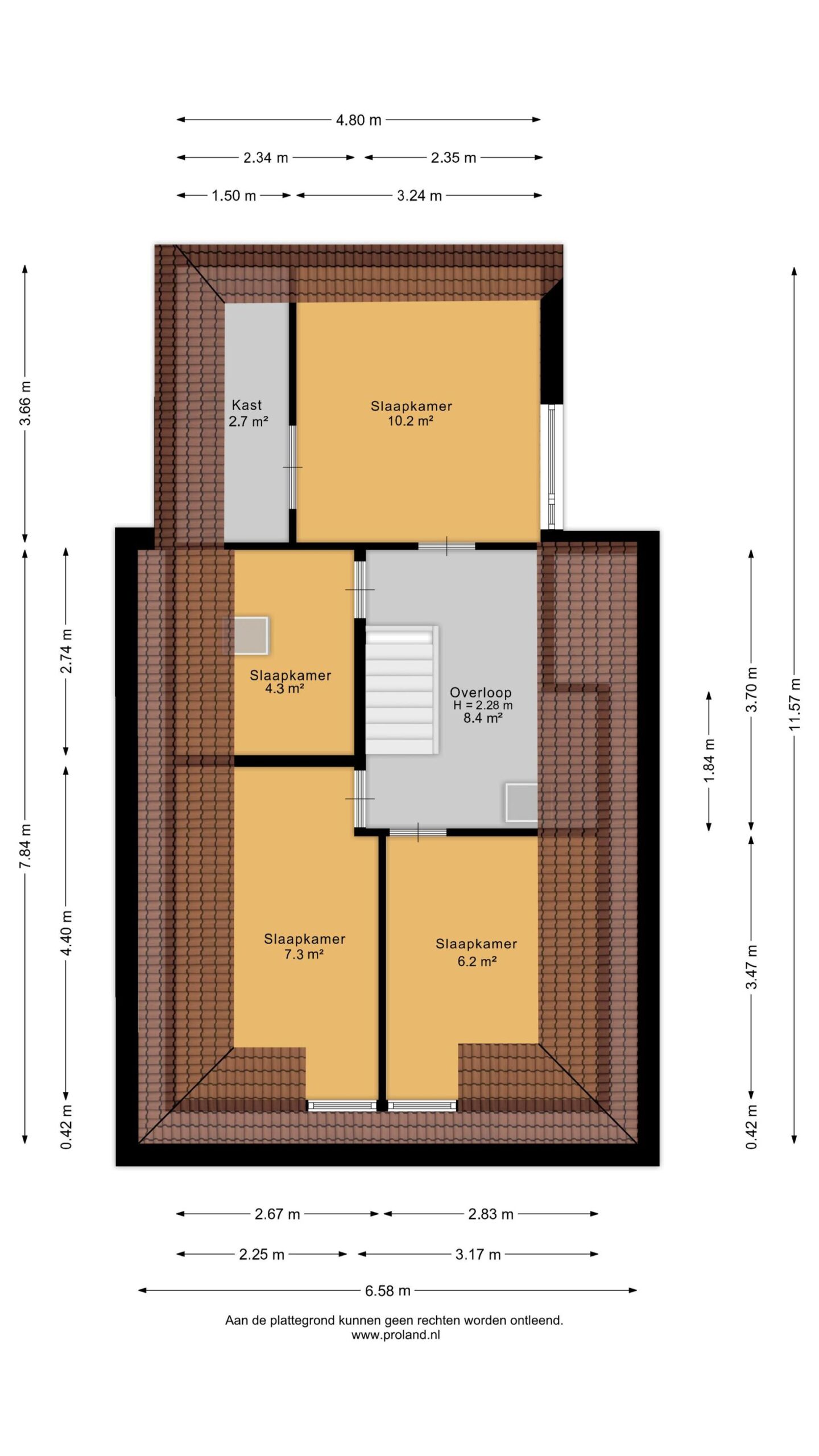
Verdieping:
Middels vaste trap te bereiken overloop met aangrenzend slaapkamer (ca. 10 m²; met kastruimte), slaapkamer (ca. 4 m²), slaapkamer (ca. 7,5 m²) en slaapkamer (ca. 6 m²).

Buitenruimtes:
Meerdere vrijstaande houten duiventillen.

Extra informatie:
- Verwarming en warmwatervoorziening middels cv-ketel Remeha Calenta i.c.m. hybride warmtepomp Intergas Xtend (2023);
- Voorzien van houten kozijnen met voornamelijk HR++ beglazing;
- Airconditioning aanwezig in woonkamer en grootste slaapkamer;
- Voorzien van 13 zonnepanelen;
- Circa 2011 is het dak van het woonhuis vervangen;
- Het woonhuis wordt niet verkocht door de eigenaar/gebruiker. De clausule 'as is, where is...' is van toepassing. Dat houdt in dat de Koper alle zichtbare en onzichtbare gebreken accepteert en de Verkoper vrijwaart van alle eventuele gebreken.

Algemeen

  • StatusBeschikbaar
  • Koopprijs€ 495.000,- k.k.
  • AanvaardingIn overleg

Bouwvorm

  • Soort objectWoonhuis
  • Soort woningEengezinswoning
  • Type woningVrijstaande woning
  • Bouwjaar1932
  • BouwvormBestaande bouw
  • LiggingenVrij uitzicht, Landelijk gelegen

Indeling

  • Woonoppervlakte112 m2
  • Perceeloppervlakte2.520 m2
  • Inhoud465 m3
  • Aantal kamers5
  • Aantal slaapkamers4
  • Aantal badkamers1

Energie

  • EnergieklasseA
  • VerwarmingCV ketel, Warmtepomp
  • C.V.-KetelRemeha Calenta
  • WarmwaterCV ketel
  • IsolatieDakisolatie, Muurisolatie, HR glas
  • CombiketelJa
  • BrandstofGas
  • EigendomEigendom

Buitenruimte

  • TuinTuin rondom
  • HoofdtuinTuin rondom
  • AchteromJa
  • Kwaliteit tuinNormaal

Parkeergelegenheid

  • Parkeer faciliteitenOp eigen terrein
  • GarageAangebouwd steen
  • Capaciteit1
  • Garages1

Dak

  • Soort dakSamengesteld dak
  • Materiaal dakPannen

Overig

  • Permanente bewoningJa
  • Onderhoud binnenGoed
  • Onderhoud buitenGoed
  • Huidig gebruikWoonruimte
  • Huidige bestemmingWoonruimte

Delfzijl

Kerkstraat 25
9934 CE Delfzijl
+31596 630 920

Vergelijkbare woningen

Hoofdafbeelding Korenbloemstraat 17

Korenbloemstraat 17

9903 EC Appingedam

€ 359.000,- k.k.

Verkocht onder voorbehoud
Hoofdafbeelding Stationsstraat 15

Stationsstraat 15

9901 BL Appingedam

€ 450.000,- k.k.

Verkocht onder voorbehoud
Hoofdafbeelding Tjamsweersterweg 13

Tjamsweersterweg 13

9901 HR Appingedam

€ 325.000,- k.k.

Verkocht onder voorbehoud
Hoofdafbeelding Wilhelminaweg 6a

Wilhelminaweg 6a

9901 CM Appingedam

€ 625.000,- k.k.

Brandsma de Jong – Delfzijl

Vragen?

Wij helpen u graag