Hoofdafbeelding Prins Hendrikstraat 4
Foto 3
Foto
Home Aanbod Prins Hendrikstraat 4

Prins Hendrikstraat 4

9902 CN Appingedam

€ 225.000,- k.k.

Starters opgelet! Centraal in Appingedam mag Brandsma De Jong u de Prins Hendrikstraat 4 aanbieden! Deze keurige 2^1 kapwoning is volledig voorzien van kunststof kozijnen en deuren, heeft een keuken uit 2022 en heeft 2 ruime slaapkamers op de eerste verdieping. Op de zolder bestaat nog de mogelijkheid om een derde slaapkamer te realiseren! Het geheel bevindt zich op een fraaie hoekkavel van 214 m², waarbij uiteraard een ruime oprit niet ontbreekt! De achtertuin is tot slot gesitueerd op het zonnige zuiden.

Door de centrale ligging van de woning bevinden het historische centrum van Appingedam, winkelcentra Harddraversplein en Overdiep, de jachthaven, sportvoorzieningen en basis- en voortgezet onderwijs zich allemaal op loop- c.q. fietsafstand. Zo bevindt het busstation zich ook op steenworp afstand en is het NS-station - met verbinding tussen Delfzijl en stad Groningen - tevens in de nabijheid gesitueerd.

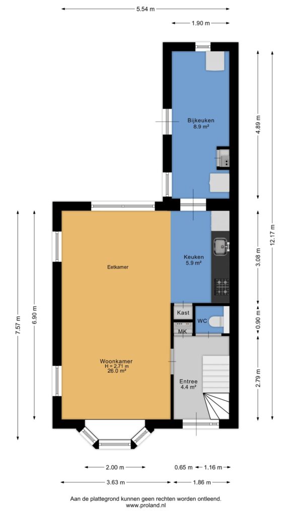
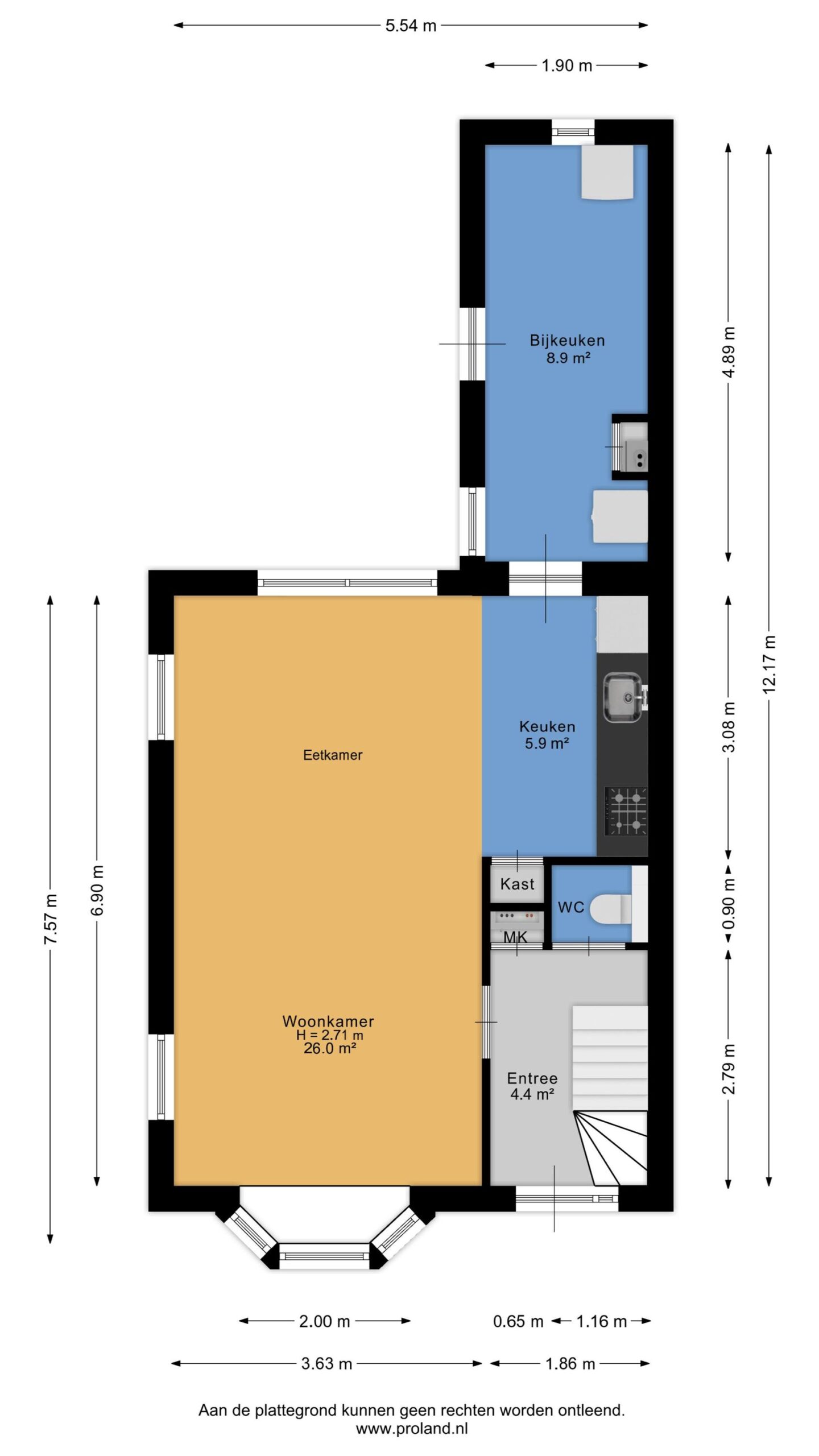
Indeling:
Begane grond:
Entree/hal met meterkast, toilet en opgang naar de verdieping, woonkamer (ca. 26 m²), half open keuken (ca. 6 m²; met kastruimte en keukenblok uit 2022 voorzien van koelkast, combi-magnetron, 4-pits gaskookplaat en afzuigkap), bijkeuken met witgoedaansluitingen, cv-opstelling en achterdeur.

Verdieping:
Middels vaste trap te bereiken overloop met kastruimte en aangrenzend slaapkamer (ca. 10 m²), slaapkamer (ca. 15 m²) en badkamer (ca. 4 m²; met douche en wastafel).

Zolder:
Middels losse trap te bereiken bergzolder.

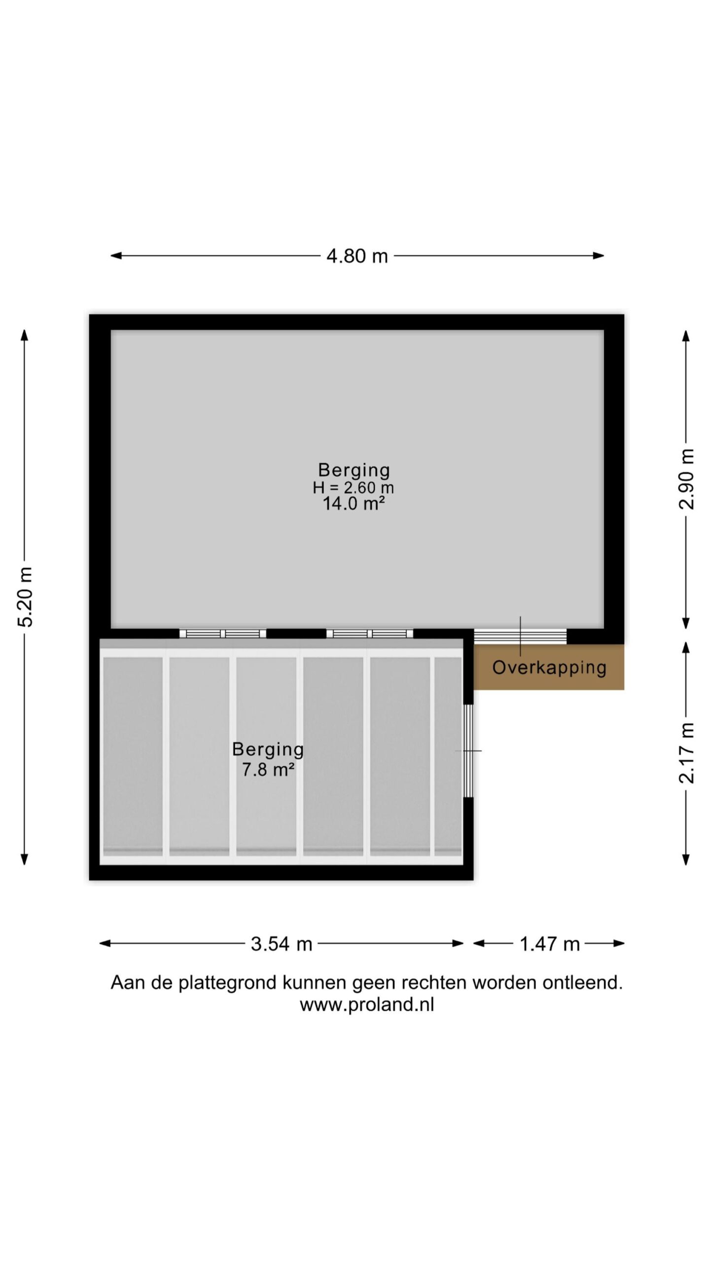
Buiten:
- Vrijstaande houten berging (ca. 14 m²) met aangebouwde houten berging (ca. 8 m²);
- Royale zij- en achtertuin met dito oprit.

Extra informatie:
- Verwarming en warmwatervoorziening middels cv-combiketel Intergas, bouwjaar 2013, eigendom;
- Voorzien van kunststof kozijnen en deuren met HR++ beglazing;
- Airconditioning woonkamer en slaapkamer boven;
- 12 zonnepanelen (ca. 255 Wp/stuk);
- keuken vernieuwd in 2022;
- Mogelijkheid tot creëren van een derde slaapkamer op zolder;
- Houten berging kan relatief eenvoudig tot garage worden omgebouwd.

Algemeen

  • StatusVerkocht onder voorbehoud
  • Koopprijs€ 225.000,- k.k.
  • AanvaardingIn overleg

Bouwvorm

  • Soort objectWoonhuis
  • Soort woningEengezinswoning
  • Type woningTwee onder één kapwoning
  • Bouwjaar1920
  • BouwvormBestaande bouw
  • LiggingenAan rustige weg, In woonwijk

Indeling

  • Woonoppervlakte86 m2
  • Perceeloppervlakte214 m2
  • Inhoud305 m3
  • Aantal kamers3
  • Aantal slaapkamers2
  • Aantal badkamers1

Energie

  • EnergieklasseD
  • VerwarmingCV ketel
  • C.V.-KetelIntergas
  • Bouwjaar C.V.-Ketel2013
  • WarmwaterCV ketel
  • IsolatieDakisolatie, HR glas
  • CombiketelJa
  • BrandstofGas
  • EigendomEigendom

Buitenruimte

  • TuinAchtertuin, Voortuin, Zijtuin
  • HoofdtuinZijtuin
  • Oppervlakte100 m2
  • Ligging hoofdtuinZuidoost
  • AchteromNee
  • Kwaliteit tuinNormaal

Bergruimte

  • Schuur / BergingVrijstaand hout
  • VoorzieningenVoorzien van elektra
  • Totaal aantal2

Parkeergelegenheid

  • Parkeer faciliteitenOp eigen terrein
  • GarageGeen garage

Dak

  • Soort dakSchilddak
  • Materiaal dakPannen

Overig

  • Permanente bewoningJa
  • Onderhoud binnenGoed
  • Onderhoud buitenGoed
  • Huidig gebruikWoonruimte
  • Huidige bestemmingWoonruimte

Delfzijl

Kerkstraat 25
9934 CE Delfzijl
+31596 630 920
Brandsma de Jong – Delfzijl

Vragen?

Wij helpen u graag