Hoofdafbeelding Kustweg 2
Foto 2
Foto
Home Aanbod Kustweg 2

Kustweg 2

9933 BA Delfzijl

€ 275.000,- k.k.

In de "Eemszichtflat" in Delfzijl biedt Brandsma De Jong dit zeer nette en goed onderhouden appartement aan. Het appartement is gelegen op de eerste woonlaag, heeft twee slaapkamers en een royale en zonnige woonkamer met veel lichtinval. Vanuit de woonkamer en vanaf het balkon aan de voorzijde heeft u een fraai uitzicht op de zeedijk en het karakteristieke Eemshotel. U geniet hier van de ochtendzon en in de middag van de schaduw. Vanuit de keuken en de woonkamer heeft u tevens toegang tot het tweede balkon aan de achterzijde, alwaar u in de middag van de zon kunt genieten. Op de begane grond bevinden zich een ruime garage en een prima fietsenberging, welke door de portiek te bereiken zijn.

Het appartement bevindt zich aan de rand van het welbekende centrum van de havenstad Delfzijl, welke ooit direct aan de zeehaven was gerealiseerd. Rond de jaren dertig van de vorige eeuw is de eerste uitbreidingswijk buiten de oorspronkelijke Vestinggracht gebouwd, waarbij in de jaren zestig Delfzijl uitbreidde langs de zeedijk met de populaire appartementencomplexen aan de Kustweg. Deze levensloopbestendige appartementen zijn gewild en beschikken over een intercom en liftinstallatie. Daarnaast zijn ze op korte loopafstand van het gezellige centrum en het NS-station gelegen. Binnen 5 minuten wandelt u over de zeedijk en de fraaie strandboulevard met een wijds uitzicht over de Eems.

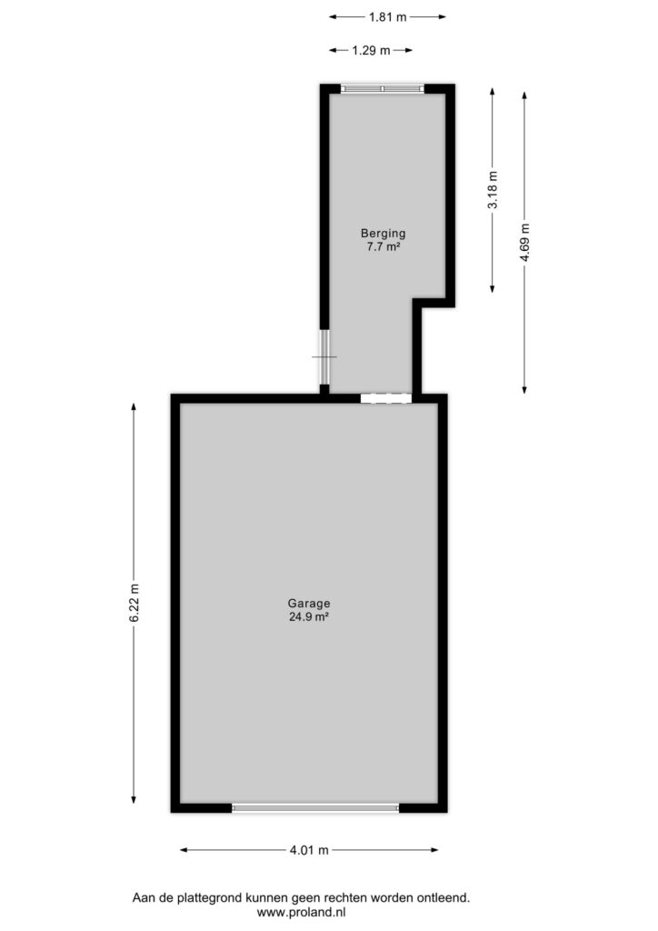
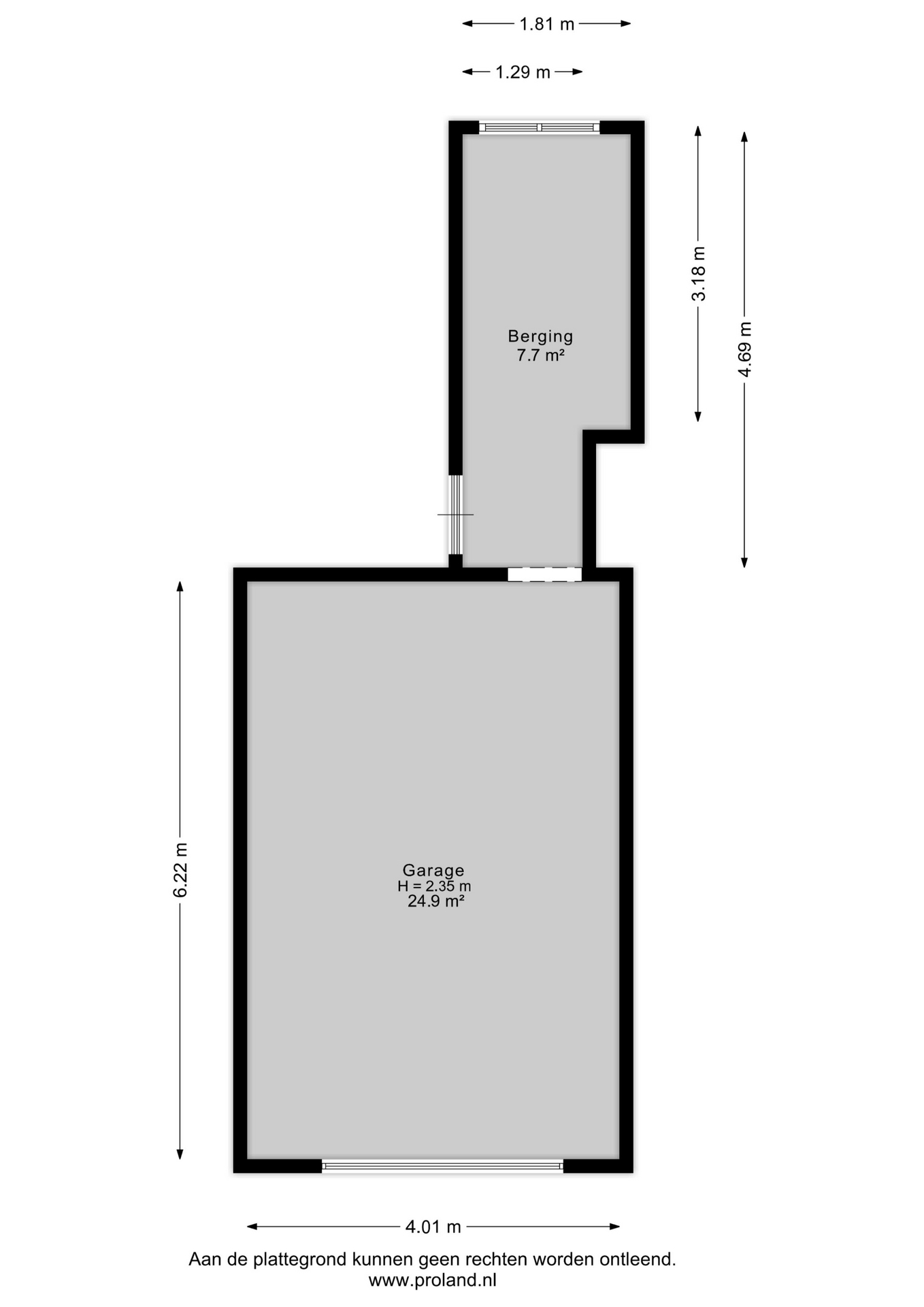
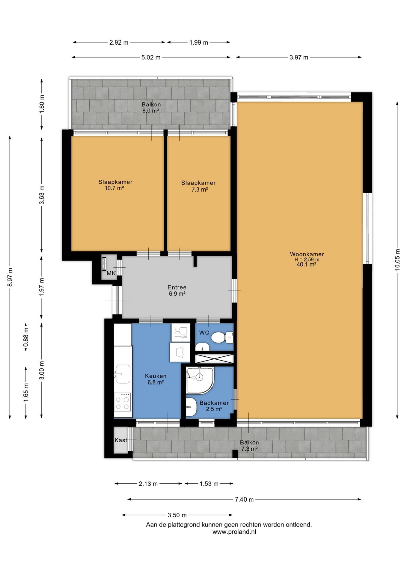
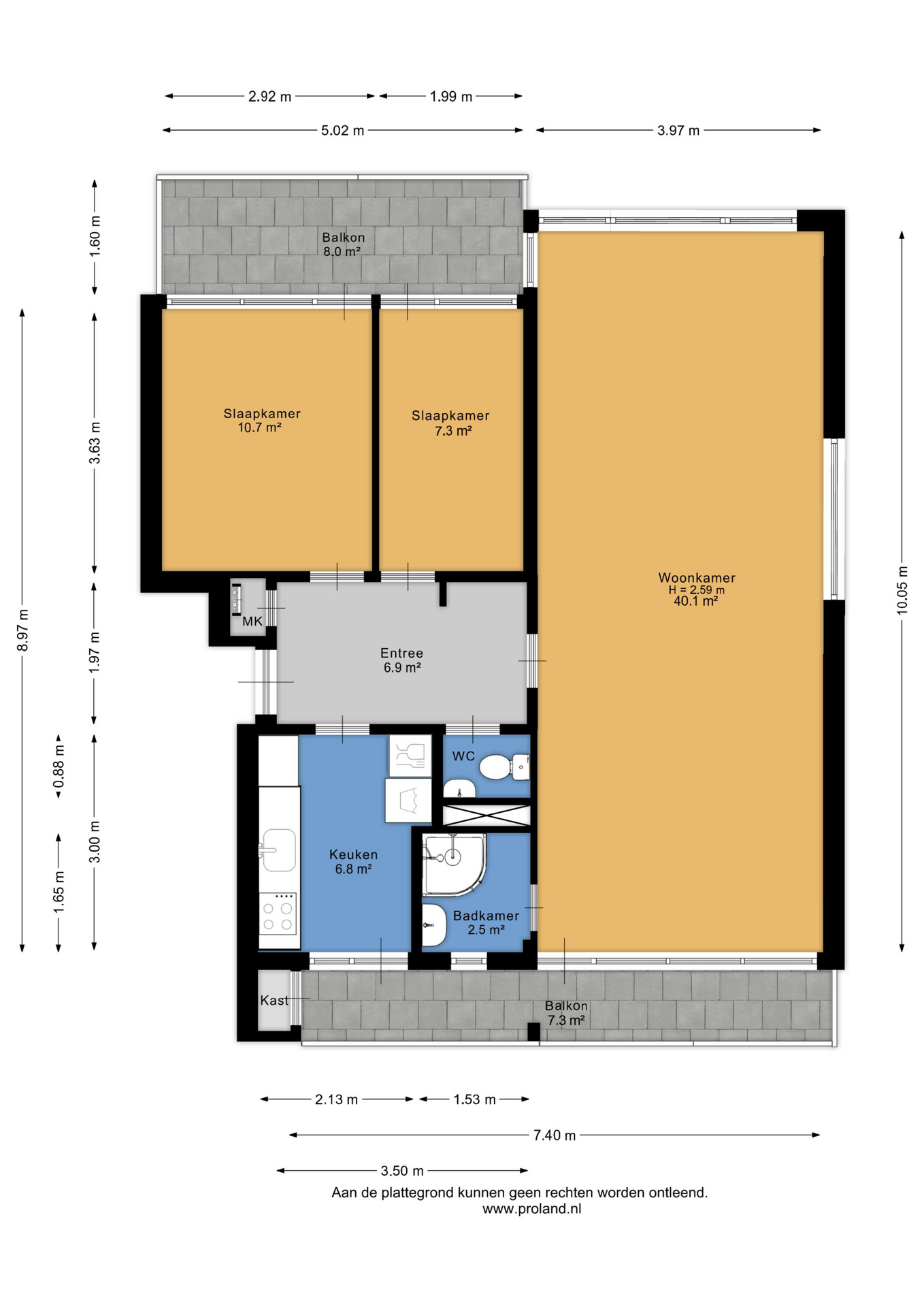
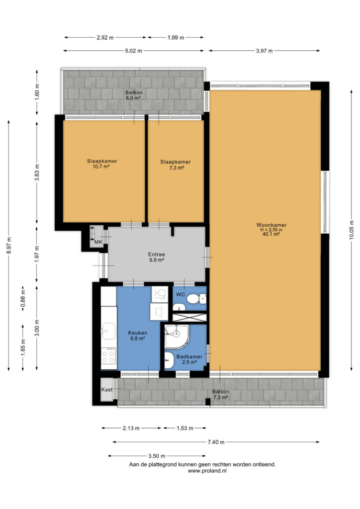
Indeling:
Verdieping:
Middels afgesloten portiek te bereiken entree/hal met meterkast, keuken (ca. 7 m²; keukenblok voorzien van koelkast, inductiekookplaat, afzuigkap, vernieuwd aanrechtblad en witgoedaansluiting) en met toegang naar het balkon aan de achterzijde, toilet, woonkamer (ca. 40 m²), slaapkamer (ca. 7,5 m²; met toegang naar het balkon aan de voorzijde) en slaapkamer (ca. 11 m²; eveneens met toegang naar het balkon aan de voorzijde).

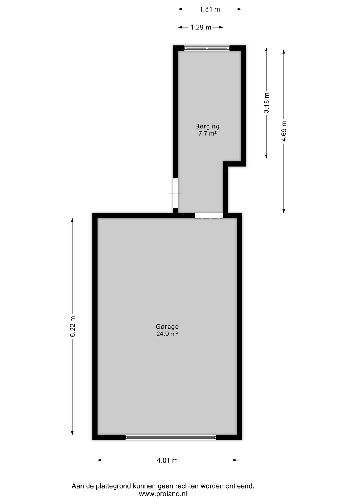
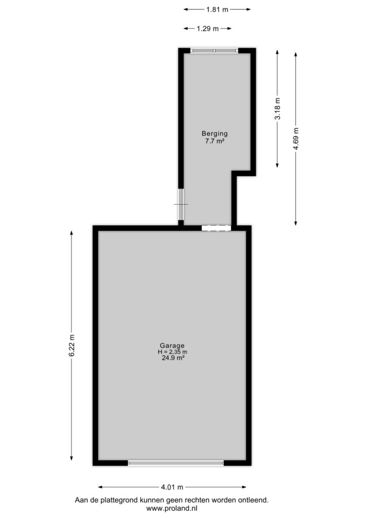
Begane grond:
Door de portiek te bereiken garage (ca. 25 m²; met elektrische sectionaaldeur) met aangrenzende berging (ca. 8 m²).

Extra informatie:
- Verwarming en warmwatervoorziening middels cv-combiketel Intergas Kompakt HRE, bouwjaar 2021, eigendom;
- Voorzien van houten kozijnen met HR-glas en isolerende beglazing;
- Elektrische screens aan voor- en zijkant, elektrisch uitvalscherm aan de achterzijde;
- VVE bijdrage is thans €150,- per maand;
- Het woonhuis wordt niet verkocht door de eigenaar/gebruiker. De clausule 'as is, where is...'is van toepassing. Dat houdt in dat de Koper alle zichtbare en onzichtbare gebreken accepteert en de Verkoper vrijwaart van alle eventuele gebreken;
- Notariële overdracht dient plaats te vinden bij Emmius Notarissen Delfzijl.

Algemeen

  • StatusBeschikbaar
  • Koopprijs€ 275.000,- k.k.
  • AanvaardingIn overleg

Bouwvorm

  • Soort objectAppartement
  • Soort appartementPortiekflat
  • Bouwjaar1960
  • BouwvormBestaande bouw
  • LiggingenVrij uitzicht

Indeling

  • Woonoppervlakte80 m2
  • Inhoud261 m3
  • Aantal kamers3
  • Aantal slaapkamers2
  • Aantal badkamers1
  • Aantal woonlagen1

Energie

  • EnergieklasseD
  • VerwarmingCV ketel
  • C.V.-KetelIntergas Kompakt HRE
  • Bouwjaar C.V.-Ketel2021
  • WarmwaterCV ketel
  • IsolatieDubbelglas, HR glas
  • CombiketelJa
  • BrandstofGas
  • EigendomEigendom

Buitenruimte

  • TuinGeen tuin
  • AchteromNee

Bergruimte

  • Schuur / BergingInpandig
  • Totaal aantal1

Parkeergelegenheid

  • Parkeer faciliteitenOpenbaar parkeren
  • GarageInpandig
  • Capaciteit1
  • Garages1

Dak

  • Soort dakPlat dak
  • Materiaal dakBitumineuze Dakbedekking

Overig

  • Permanente bewoningJa
  • Onderhoud binnenGoed
  • Onderhoud buitenGoed
  • Huidig gebruikWoonruimte
  • Huidige bestemmingWoonruimte

Delfzijl

Kerkstraat 25
9934 CE Delfzijl
+31596 630 920

Vergelijkbare woningen

Hoofdafbeelding Zwanendrift 5

Zwanendrift 5

9932 LN Delfzijl

€ 275.000,- k.k.

Onder optie
Hoofdafbeelding Mondsteen 31

Mondsteen 31

9934 LV Delfzijl

€ 275.000,- k.k.

Verkocht onder voorbehoud
Hoofdafbeelding Ganzenerf 103

Ganzenerf 103

9932 KC Delfzijl

€ 250.000,- k.k.

Hoofdafbeelding Waterstraat 26

Waterstraat 26

9934 AV Delfzijl

€ 250.000,- k.k.