Hoofdafbeelding Hoofdstraat 16
Foto
Foto 2
Home Aanbod Hoofdstraat 16

Hoofdstraat 16

9937 PD Meedhuizen

€ 225.000,- k.k.

In het verleden had elke dorpje in ons werkgebied haar eigen voorzieningen, bijvoorbeeld op het gebied van winkels. Helaas zien we dat het winkelbestand in veel dorpen verloren is gegaan maar het vastgoed niet. Het straatbeeld wordt veelal nog gekenmerkt door voormalige woon / winkelpanden met een grote verscheidenheid aan invullingen. Zo ook in Meedhuizen waar Brandsma De Jong de vrijstaande woning aan de Hoofdstraat 16 mag verkopen, waar in vervlogen tijden onder meer een fietsenwinkel is gehuisvest. ‘Anno nu’ is de fietsenwinkel niet meer en is de betreffende ruimte op eenvoudige wijze bij de ‘woonfunctie’ getrokken.

Wat voor veel woon /winkelpanden geldt is dat ze - zeker na de toevoeging van de winkelruimte aan het woonoppervlakte - bovengemiddelde maatvoeringen kennen. Hierdoor zijn de gebruiksmogelijkheden ook vaak bovengemiddeld! Dit geldt ook voor de Hoofdstraat 16, waarbij we middels twee Artist Impressions de potentie hebben getracht weer te geven. In de eerste plaats door de samenvoeging van de winkelruimte annex huidige entree met de slaapkamer aan de straatzijde. Hierdoor ontstaan naar onze mening een ruime en lichte woonkamer waar men de reuring van het dorp op prettige wijze kan beleven.

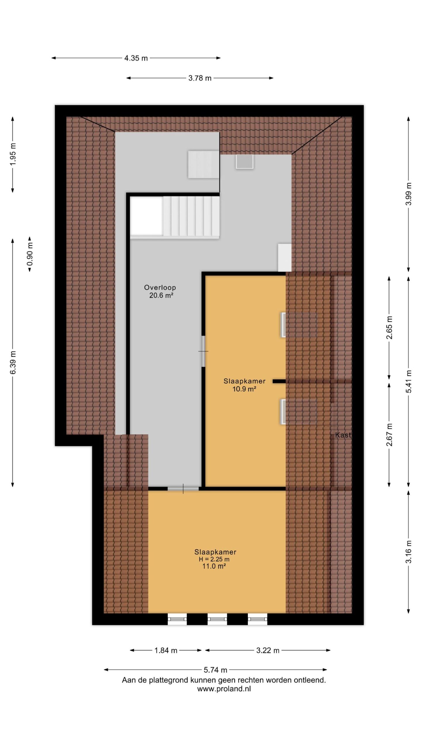
Ook van de achterzijde hebben we een impressie gemaakt. Gecombineerd met de potentie van de diepe tuin achter de woning hebben we hier het contact met de tuin proberen te vergroten. Hiervoor hebben we in de eerste plaats de woonkamer samengevoegd met de huidige keuken en in de achtergevel tuindeuren een set gevisualiseerd. De royale woonkeuken die hierdoor ontstaat biedt ruimte voor een royale keukeninrichting en dito eettafel. Voor de verdieping hebben we geen impressies laten maken maar op basis van de plattegronden blijkt dat bij herindeling de realisatie van vier slaapkamers mogelijk is.

Voor de huidige indeling verwijzen we u overigens ook graag naar de plattegronden van de beide woonlagen. Naast de potentie van het geheel benadrukken we wel dat het de nodige energie vraagt om deze potentie volledig te benutten. Het geheel verkeert in een eenvoudige staat van inrichting, wordt bijvoorbeeld lokaal verwarmd en is maar beperkt geïsoleerd. Toch willen we ‘het glas graag halfvol houden’! De SNN Subsidie van € 30.000,-- is in zijn geheel nog beschikbaar en ook de mogelijkheden van Nij Begun zijn nog niet aangewend. Kortom, ook op het gebied van subsidies e.d. veel potentieel!

Algemeen

  • StatusBeschikbaar
  • Koopprijs€ 225.000,- k.k.
  • AanvaardingIn overleg

Bouwvorm

  • Soort objectWoonhuis
  • Soort woningEengezinswoning
  • Type woningVrijstaande woning
  • Bouwjaar1929
  • BouwvormBestaande bouw
  • LiggingenAan drukke weg

Indeling

  • Woonoppervlakte130 m2
  • Perceeloppervlakte495 m2
  • Inhoud555 m3
  • Aantal kamers5
  • Aantal slaapkamers3
  • Aantal badkamers1

Energie

  • EnergieklasseG
  • VerwarmingGaskachels
  • WarmwaterGeiser eigendom
  • IsolatieDubbelglas
  • CombiketelNee

Buitenruimte

  • TuinAchtertuin, Voortuin
  • HoofdtuinAchtertuin
  • Oppervlakte257 m2
  • Ligging hoofdtuinZuidoost
  • AchteromNee
  • Kwaliteit tuinNormaal

Parkeergelegenheid

  • GarageVrijstaand hout
  • Capaciteit1
  • Garages1

Dak

  • Soort dakZadeldak
  • Materiaal dakPannen

Overig

  • Permanente bewoningJa
  • Onderhoud binnenRedelijk
  • Onderhoud buitenRedelijk
  • Huidig gebruikWoonhuis
  • Huidige bestemmingWoonhuis

Delfzijl

Kerkstraat 25
9934 CE Delfzijl
+31596 630 920
Brandsma de Jong – Delfzijl

Vragen?

Wij helpen u graag