Hoofdafbeelding Melkweg 3
Foto
Foto 2
Home Aanbod Melkweg 3

Melkweg 3

9909 AL Spijk

€ 150.000,- k.k.

Starters en klussers opgelet! In een rustige straat midden in de dorpskern van Spijk (Gn) mag Brandsma De Jong u dit vrijstaand woonhuis aanbieden. Het geheel verkeert in een eenvoudige staat van inrichting, waardoor er een aantal Artist Impressions zijn opgemaakt om de mogelijkheden ervan weer te geven. Het woonhuis kent een prettige oppervlakte waardoor een renovatie zeker loont. Het geheel heeft thans de beschikking over 1 slaapkamer op de begane grond, waarbij er nog uitbreidingsmogelijkheden zijn op de verdieping. Achter de woning bevindt zich voorts een kleine tuin met toegang tot de aangebouwde garage, waarbij het geheel is gelegen op een zonnig perceel van ca. 320 m² gesitueerd op het zuidwesten.

Spijk is het zogenaamde noordelijke "kerndorp" van de gemeente Eemsdelta. wat direct aangeeft dat het dorp een regiofunctie biedt voor de omliggende kleinere kernen. Onderdeel van deze regiofunctie is dat het dorp een goed voorzieningenniveau kent, waarvan het kindcentrum en een uitgebreide supermarkt een goed voorbeeld zijn. Het dorp kent verder een gunstige ligging, onder meer vanwege de situering tussen de havenstad Delfzijl enerzijds en de groeiende Eemshaven anderzijds. Via de nabijgelegen N46 - beter bekend als de "Eemshavenweg" - zijn ook de stedelijke voorzieningen van de stad Groningen binnen 30 autominuten goed te bereiken. Naast voorzieningen op het gebied van de dagelijkse behoeften kent het dorp een rijk verenigingsleven en meerdere sportverenigingen.

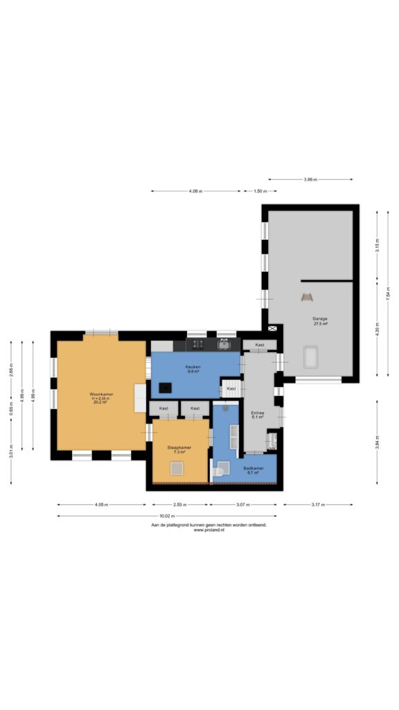
Indeling:
Begane grond:
Entree/hal met meterkast, opgang naar de verdieping en kastruimte, keuken (ca. 10 m²; met eenvoudig keukenblok en kastruimte), woonkamer (ca. 20 m²; met tuindeuren), slaapkamer (ca. 7,5 m²; met kastruimte), badkamer (ca. 6,5 m²; met dubbele wastafel, douche, toilet en witgoedaansluiting). Tevens vanuit de entree te bereiken aangebouwde garage (ca. 27,5 m²; met bergzolder)

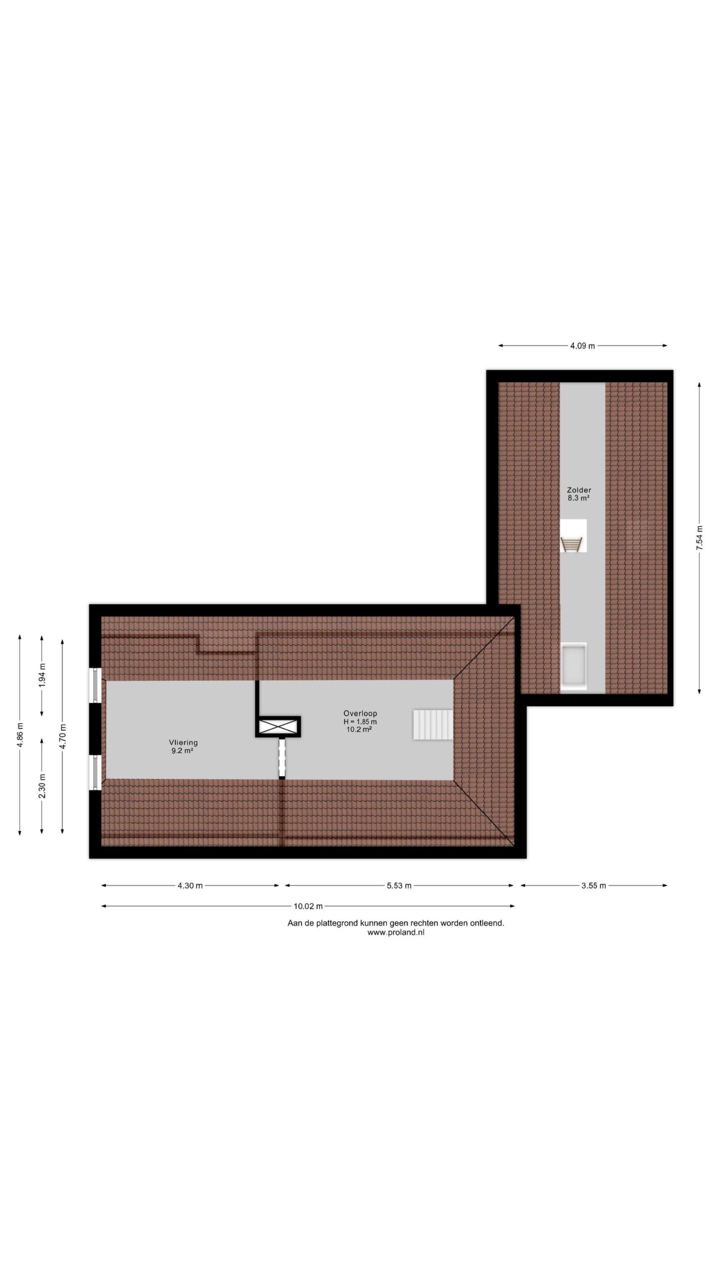
Verdieping:
Middels vaste trap te bereiken overloop (ca. 10 m²) met aangrenzende vliering (ca. 9 m²).

Extra informatie:
- Verwarming middels gaskachel;
- Warmwatervoorziening middels geiser;
- Voorzien van houten kozijnen met voornamelijk isolerende beglazing;
- De opgestelde artist impressions zijn enkel ter inspiratie van een resultaat na een eventuele verbouwing. Aan de getoonde artist impressions kunnen geen rechten worden ontleend;
- Akte dient te passeren bij Emmius Notarissen (vestiging Delfzijl);
- Het woonhuis wordt niet verkocht door de eigenaar/gebruiker. De clausule 'as is, where is...'is van toepassing. Dat houdt in dat de Koper alle zichtbare en onzichtbare gebreken accepteert en de Verkoper vrijwaart van alle eventuele gebreken.

Algemeen

  • StatusOnder optie
  • Koopprijs€ 150.000,- k.k.
  • AanvaardingIn overleg

Bouwvorm

  • Soort objectWoonhuis
  • Soort woningEengezinswoning
  • Type woningVrijstaande woning
  • Bouwjaar1920
  • BouwvormBestaande bouw
  • LiggingenAan rustige weg

Indeling

  • Woonoppervlakte59 m2
  • Perceeloppervlakte320 m2
  • Inhoud455 m3
  • Aantal kamers2
  • Aantal slaapkamers1
  • Aantal badkamers1

Energie

  • EnergieklasseF
  • VerwarmingGaskachels
  • WarmwaterGeiser eigendom
  • IsolatieDakisolatie, Muurisolatie, Grotendeels dubbelglas
  • CombiketelNee

Buitenruimte

  • TuinAchtertuin, Zijtuin
  • HoofdtuinAchtertuin
  • Oppervlakte81 m2
  • Ligging hoofdtuinZuidwest
  • AchteromJa
  • Kwaliteit tuinNormaal

Parkeergelegenheid

  • Parkeer faciliteitenOp eigen terrein
  • GarageAangebouwd steen
  • Capaciteit1
  • Garages1

Dak

  • Soort dakSchilddak
  • Materiaal dakPannen

Overig

  • Permanente bewoningJa
  • Onderhoud binnenMatig tot redelijk
  • Onderhoud buitenRedelijk tot goed
  • Huidig gebruikWoonruimte
  • Huidige bestemmingWoonruimte

Delfzijl

Kerkstraat 25
9934 CE Delfzijl
+31596 630 920
Brandsma de Jong – Delfzijl

Vragen?

Wij helpen u graag