Hoofdafbeelding Heiliggravenweg 16
Foto
Foto 3
Home Aanbod Heiliggravenweg 16

Heiliggravenweg 16

9901 CH Appingedam

€ 425.000,- k.k.

Grenzend aan het oude stadscentrum en nabij de nagelnieuwe scholencampus bevindt zich een van de meest sfeervolle woonomgevingen van de stad Appingedam, welke aan de noordzijde wordt begrensd door de N360 (Groningen – Delfzijl) en het aldaar gesitueerde NS-station (Groningen – Delfzijl). Deze wijk herbergt een grote diversiteit aan woningen alwaar ook dit statige woonhuis zich bevindt aan de Heiliggravenweg 16. De woning heeft een zonnige woonkamer van maar liefst 42 m² met tuindeuren, een in 2020 vernieuwde keuken en op de verdieping nog eens 3 uiterst royale slaapkamers. Het geheel is gunstig gelegen op een perceel van 584 m² met de achtertuin gesitueerd op het oosten en welke mede aan de achterzijde met de auto te bereiken is.

Appingedam kennen velen als het middeleeuwse stadje met een sfeervol stadscentrum voorzien van grachtenpanden met de kenmerkende ‘hangende keukentjes’. Waar de bebouwing van Appingedam voor grote delen nog de sfeer van ‘toen’ uitademt, daar is het voorzieningenniveau tegenwoordig uiteraard zeer ‘up to date’ te noemen. Zo is er een relatief jong winkelcentrum genaamd Winkelcentrum Overdiep gerealiseerd, dat grenst aan het historische stadscentrum. De stad Appingedam kent uiteraard nog vele andere voorzieningen. Op het gebied van cultuur meerdere musea en galerieën. Met betrekking tot openbaar vervoer een nabijgelegen NS-station met verbinding richting de steden Delfzijl en Groningen. Een nieuwe scholencampus voor voortgezet onderwijs op steenworp afstand, maar ook meerdere basisonderwijsinstellingen. Naast diverse - sport - verenigingen is er op recreatief gebied ook een gemeentelijk zwembad aanwezig, kent het stadscentrum een gezellige jachthaven en worden er jaarlijks diverse evenementen in en om Appingedam georganiseerd.

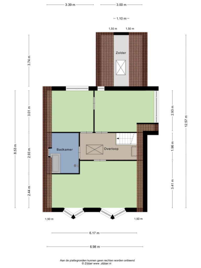
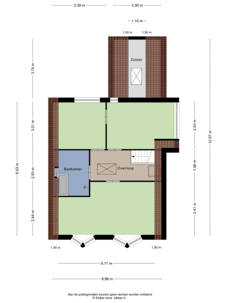
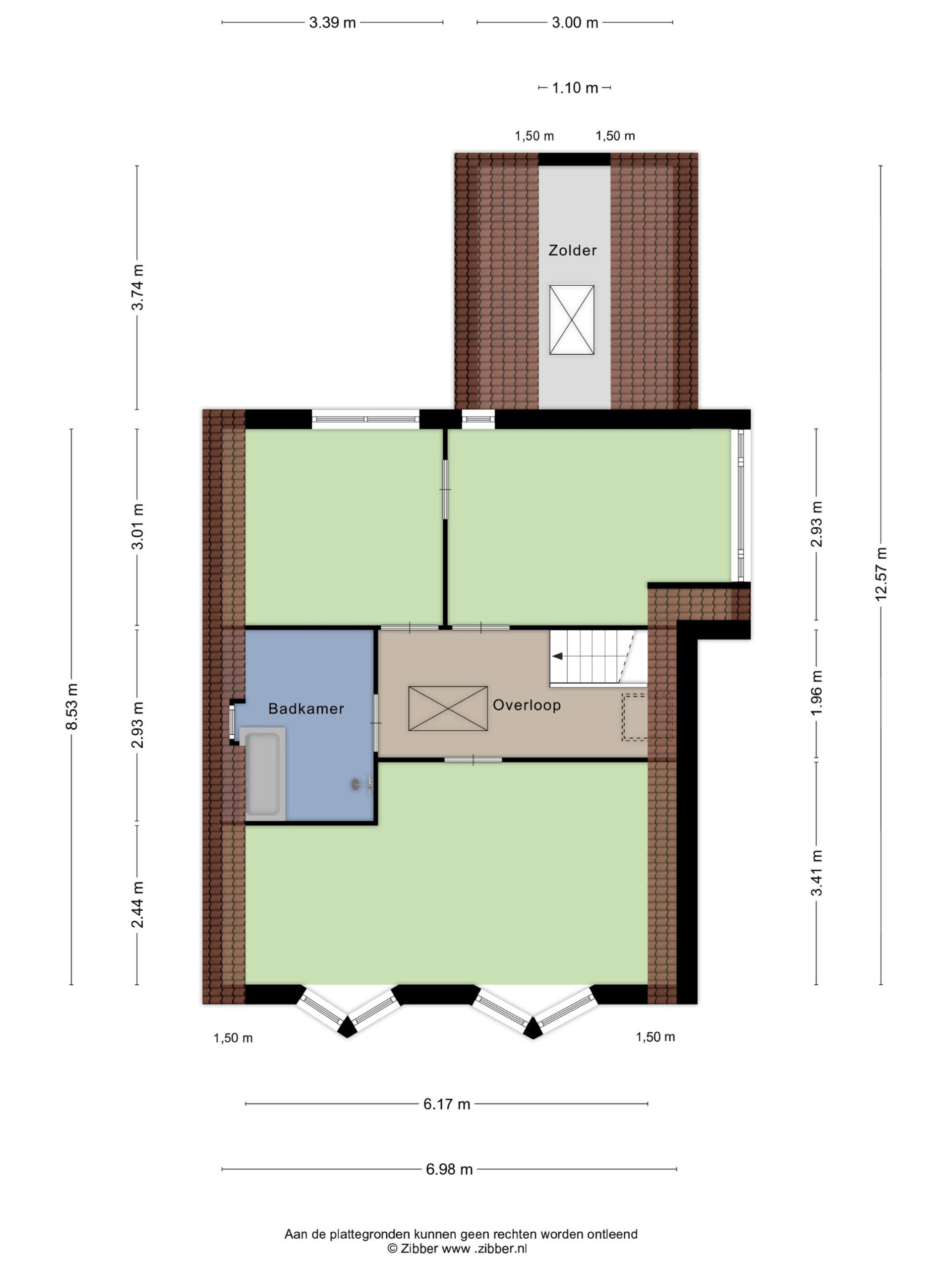
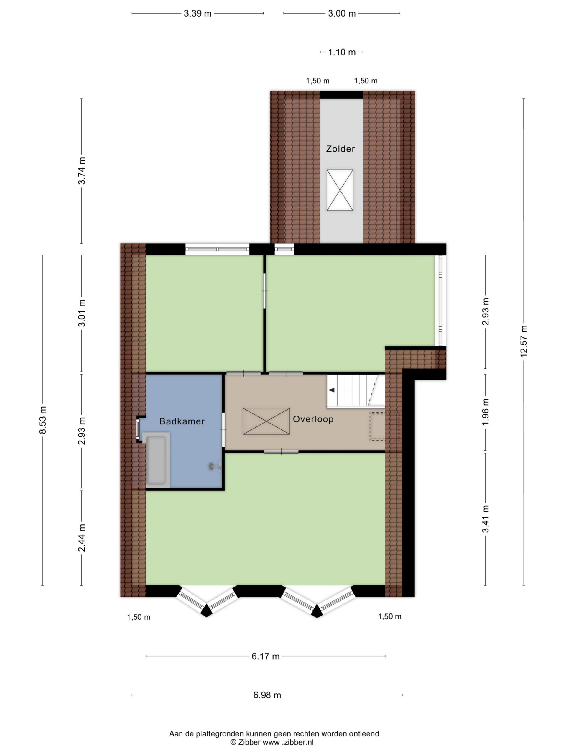
Indeling:
Begane grond:
Entree/hal met meterkast, toilet, toegang naar de kelder (ca. 7,5 m²) en opgang naar de verdieping, royale woonkamer (ca. 42 m²; met zijkamer en tuindeuren), gesloten keuken (vernieuwd in 2020 en met U-opstelling voorzien van koel-/vriescombinatie, inductiekookplaat, afzuigkap, combi-oven en vaatwasser) en aangrenzende bijkeuken/berging (ca. 10,5 m²; met witgoedaansluitingen, cv-opstelling, achterentree en bergzoldertje).

Verdieping:
Middels vaste trap te bereiken overloop met aangrenzend slaapkamer (ca. 19 m²), slaapkamer (ca. 14 m²), slaapkamer 9 (ca. 9 m²) en badkamer (ca. 6 m²; met ligbad, douchecabine, wastafelmeubel en extra toilet).

Zolder:
Middels vlizotrap te bereiken royale zolderruimte (ca. 21,5 m²).

Buitenruimte:
- Royale tuin rondom het woonhuis;
- Vrijstaande houten garage (ca. 25 m²);
- Aan de garage gebouwde gesloten carport (voor aanhanger/boot).

Informatie:
- Verwarming en warmwatervoorziening middels cv-combiketel Nefit Topline, 2009, eigendom;
- Voorzien van houten kozijnen met HR++ beglazing;
- Keuken vernieuwd in 2020;
- Mogelijkheid tot het aanvragen van subsidiemogelijkheid "Nij Begun" €40.000,-.

Algemeen

  • StatusBeschikbaar
  • Koopprijs€ 425.000,- k.k.
  • AanvaardingIn overleg

Bouwvorm

  • Soort objectWoonhuis
  • Soort woningEengezinswoning
  • Type woningVrijstaande woning
  • Bouwjaar1926
  • BouwvormBestaande bouw
  • LiggingenAan rustige weg

Indeling

  • Woonoppervlakte132 m2
  • Perceeloppervlakte584 m2
  • Inhoud584 m3
  • Aantal kamers5
  • Aantal slaapkamers3
  • Aantal badkamers1

Energie

  • EnergieklasseD
  • VerwarmingCV ketel
  • C.V.-KetelNefit Topline
  • Bouwjaar C.V.-Ketel2009
  • WarmwaterCV ketel
  • IsolatieMuurisolatie, Vloerisolatie
  • CombiketelJa
  • BrandstofGas
  • EigendomEigendom

Buitenruimte

  • TuinTuin rondom
  • HoofdtuinTuin rondom
  • AchteromJa
  • Kwaliteit tuinVerzorgd

Bergruimte

  • Schuur / BergingAangebouwd hout
  • Totaal aantal1

Parkeergelegenheid

  • Parkeer faciliteitenOpenbaar parkeren, Op eigen terrein
  • GarageVrijstaand hout
  • Capaciteit1
  • Garages1

Dak

  • Soort dakZadeldak
  • Materiaal dakPannen

Overig

  • Permanente bewoningJa
  • Onderhoud binnenGoed
  • Onderhoud buitenGoed
  • Huidig gebruikWoonruimte
  • Huidige bestemmingWoonruimte

Delfzijl

Kerkstraat 25
9934 CE Delfzijl
+31596 630 920

Vergelijkbare woningen

Hoofdafbeelding Tjamsweersterweg 13

Tjamsweersterweg 13

9901 HR Appingedam

€ 325.000,- k.k.

Verkocht onder voorbehoud
Hoofdafbeelding Wilhelminaweg 6a

Wilhelminaweg 6a

9901 CM Appingedam

€ 625.000,- k.k.

Verkocht onder voorbehoud
Hoofdafbeelding Prins Hendrikstraat 4

Prins Hendrikstraat 4

9902 CN Appingedam

€ 225.000,- k.k.

Verkocht onder voorbehoud
Hoofdafbeelding Ds. Syperdapad 6

Ds. Syperdapad 6

9901 TC Appingedam

€ 575.000,- k.k.

Brandsma de Jong – Delfzijl

Vragen?

Wij helpen u graag