Hoofdafbeelding Waterstraat 26
Foto
Foto 2
Home Aanbod Waterstraat 26

Waterstraat 26

9934 AV Delfzijl

€ 250.000,- k.k.

Midden in het centrum van Delfzijl bevindt zich deze ruim opgezette bovenwoning, type maisonette. Het betreft een sfeervol appartement met een uiterst royale woonkamer en 3 slaapkamers op de tweede verdieping. Aan de achterzijde bevindt zich een royaal dakterras, gesitueerd op het zuidoosten. Wat het geheel uniek maakt, is het feit dat er zich aan de achterzijde op de begane grond een tuin bevindt met een stenen berging. Daarbij zijn alle voorzieningen van Delfzijl op loopafstand te bereiken waaronder supermarkten, een gevarieerd winkelaanbod, meerdere restaurants en terrassen.

De afgelopen jaren heeft Delfzijl een metamorfose ondergaan die nog steeds in uitvoering is. Onderdeel hiervan is de herstructurering van het stadscentrum geweest. Overigens, ten dele nog steeds in volle gang. Het winkelcentrum is compacter en gezelliger gemaakt, iets wat dagelijks merkbaar is. Ook het NS-station en het vergrote zeestrand met -dijk zijn binnen een minuut of vijf te voet te bereiken.

Indeling:
Begane grond:
Entree/trapopgang met meterkast.

Eerste verdieping:
Overloop met aangrenzend woonkamer (ca. 24 m²) met elektrische haard, middels suitedeuren te bereiken eetkamer (ca. 30 m²) en keuken (ca. 6,5 m²; met hoekopstelling voorzien van koel-/vriescombinatie, oven, 5-pits gaskookplaat, afzuigkap, vaatwasser en toegang naar het dakterras (ca. 23 m²). Tevens vanuit de hal te bereiken toilet, badkamer (ca. 5 m²; met ligbad, douche en wastafelmeubel) en opgang naar de tweede verdieping.

Tweede verdieping:
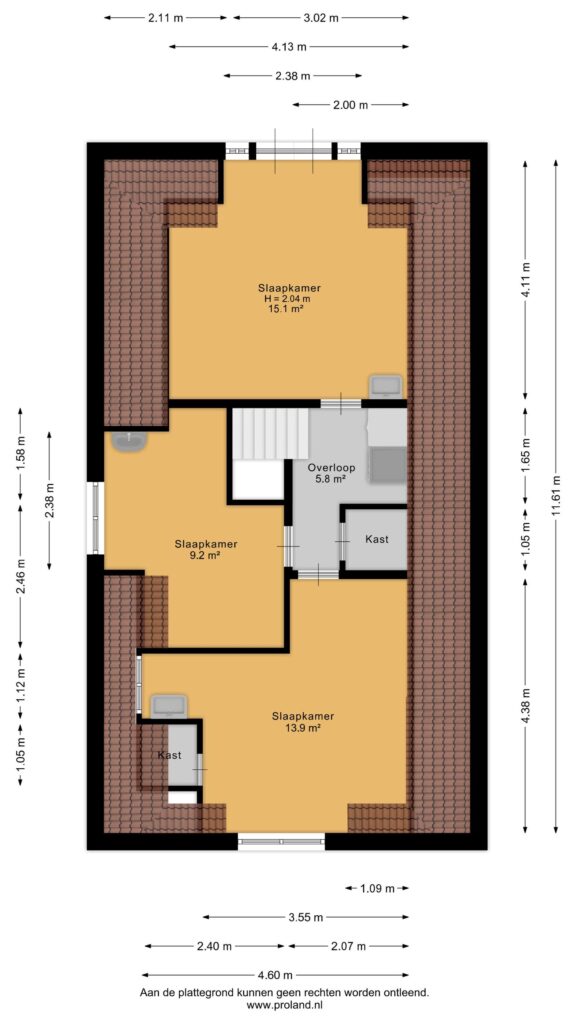
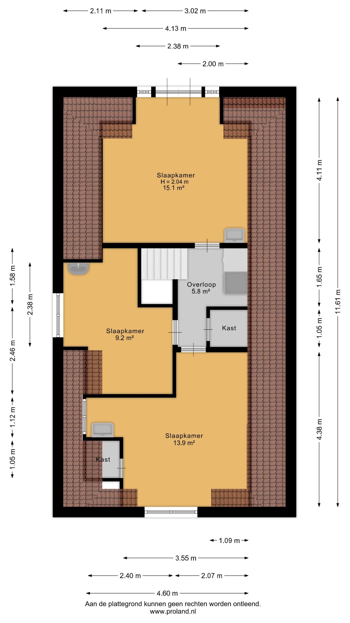
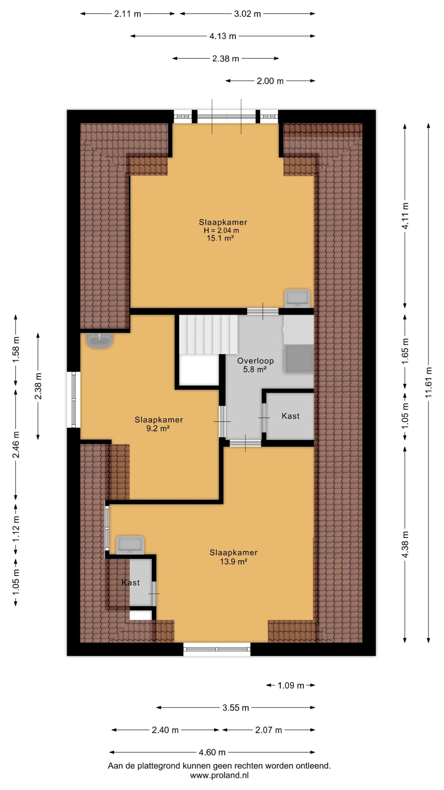
Middels vaste trap te bereiken overloop met witgoedaansluitingen, kastruimte en aangrenzend slaapkamer (ca. 15 m²), slaapkamer (ca. 9 m²) en slaapkamer (ca. 14 m²).

Buiten:
- Dakterras (ca. 23 m²);
- Bergruimte (ca. 13,5 m²);
- Besloten tuin (ca. 65 m²).

Extra informatie:
- Verwarming en warmwatervoorziening middels cv-combiketel Nefit Proline NXT CW4, bouwjaar 2024, eigendom;
- Voorzien van kunststof kozijnen met HR++ beglazing;
- Geen actieve V.V.E. Bijdrage opstalverzekering €25,89 per maand.

Algemeen

  • StatusVerkocht onder voorbehoud
  • Koopprijs€ 250.000,- k.k.
  • AanvaardingIn overleg

Bouwvorm

  • Soort objectAppartement
  • Soort appartementMaisonnette
  • BouwvormBestaande bouw
  • LiggingenIn centrum

Indeling

  • Woonoppervlakte133 m2
  • Inhoud496 m3
  • Aantal kamers6
  • Aantal slaapkamers3
  • Aantal badkamers1
  • Aantal woonlagen2

Energie

  • EnergieklasseD
  • VerwarmingCV ketel
  • C.V.-KetelNefit Proline NXT CW4
  • Bouwjaar C.V.-Ketel2024
  • WarmwaterCV ketel
  • IsolatieMuurisolatie, HR glas
  • CombiketelJa
  • BrandstofGas
  • EigendomEigendom

Buitenruimte

  • TuinAchtertuin
  • HoofdtuinAchtertuin
  • Oppervlakte63 m2
  • Ligging hoofdtuinZuidoost
  • AchteromJa
  • Kwaliteit tuinNormaal

Bergruimte

  • Schuur / BergingVrijstaand steen
  • Totaal aantal1

Parkeergelegenheid

  • Parkeer faciliteitenParkeervergunningen
  • GarageGeen garage

Dak

  • Soort dakSchilddak
  • Materiaal dakPannen

Overig

  • Permanente bewoningJa
  • Onderhoud binnenGoed
  • Onderhoud buitenGoed
  • Huidig gebruikWoonruimte
  • Huidige bestemmingWoonruimte

Delfzijl

Kerkstraat 25
9934 CE Delfzijl
+31596 630 920

Vergelijkbare woningen

Hoofdafbeelding Walker 14

Walker 14

9934 LK Delfzijl

€ 300.000,- k.k.

Hoofdafbeelding Vlamoven 95

Vlamoven 95

9934 NH Delfzijl

€ 250.000,- k.k.

Verkocht onder voorbehoud
Hoofdafbeelding Menno van Coehoornplein 5

Menno van Coehoornplein 5

9934 GT Delfzijl

€ 275.000,- k.k.

Verkocht onder voorbehoud
Hoofdafbeelding Simon van Wattumstraat 13

Simon van Wattumstraat 13

9933 KD Delfzijl

€ 300.000,- k.k.

Brandsma de Jong – Delfzijl

Vragen?

Wij helpen u graag