Hoofdafbeelding Heiman Akkerstraat 7
Foto
Foto 2
Home Aanbod Heiman Akkerstraat 7

Heiman Akkerstraat 7

9902 GE Appingedam

€ 1.500,- p/m

De wijk Opwierde in Appingedam ondergaat momenteel een grootschalige herstructurering waarbij de woningvoorraad in het kader van de Sloop / Nieuwbouwregeling wordt vernieuwd. Eén van de woningen die van dit project deel uitmaakt is deze levensloopbestendige tussenwoning aan de Heiman Akkerstraat 7. De woning heeft op de begane grond een slaapkamer, een badkamer en een woonkamer met open keuken. Op de verdieping bevinden zich ook nog eens 4 slaapkamers! Het woonhuis is uiteraard gebouwd volgens de laatste normen, is gasloos, optimaal geïsoleerd en daarbij voorzien van volledige vloerverwarming in combinatie met een lucht/water warmtepomp en wtw-installatie. Tezamen met de 9 zonnepalen heeft dit er voor gezorgd dat de woning niet geheel verrassend over een uitstekend A++++ energielabel beschikt.

Indeling:
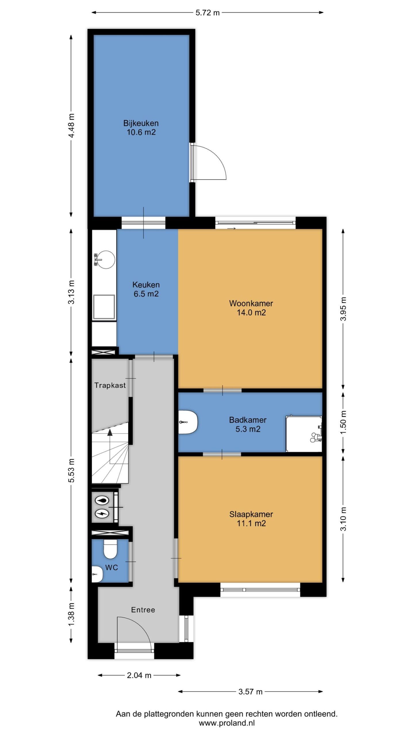
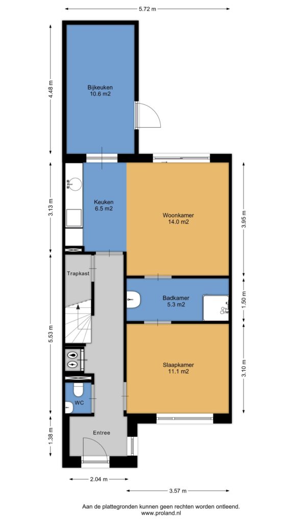
Begane grond:
Entree/hal met toilet, meterkast, trapkast en opgang naar de verdieping, woon-/slaapkamer (ca. 11 m²), badkamer (ca. 5,5 m²; met inloopdouche en wastafelmeubel), woonkamer (ca. 14 m²; met schuifpui), open keuken (ca. 6,5 m²; met modern keukenblok voorzien van inbouwapparatuur), aangebouwde berging (ca. 10,5 m²; met achterentree).

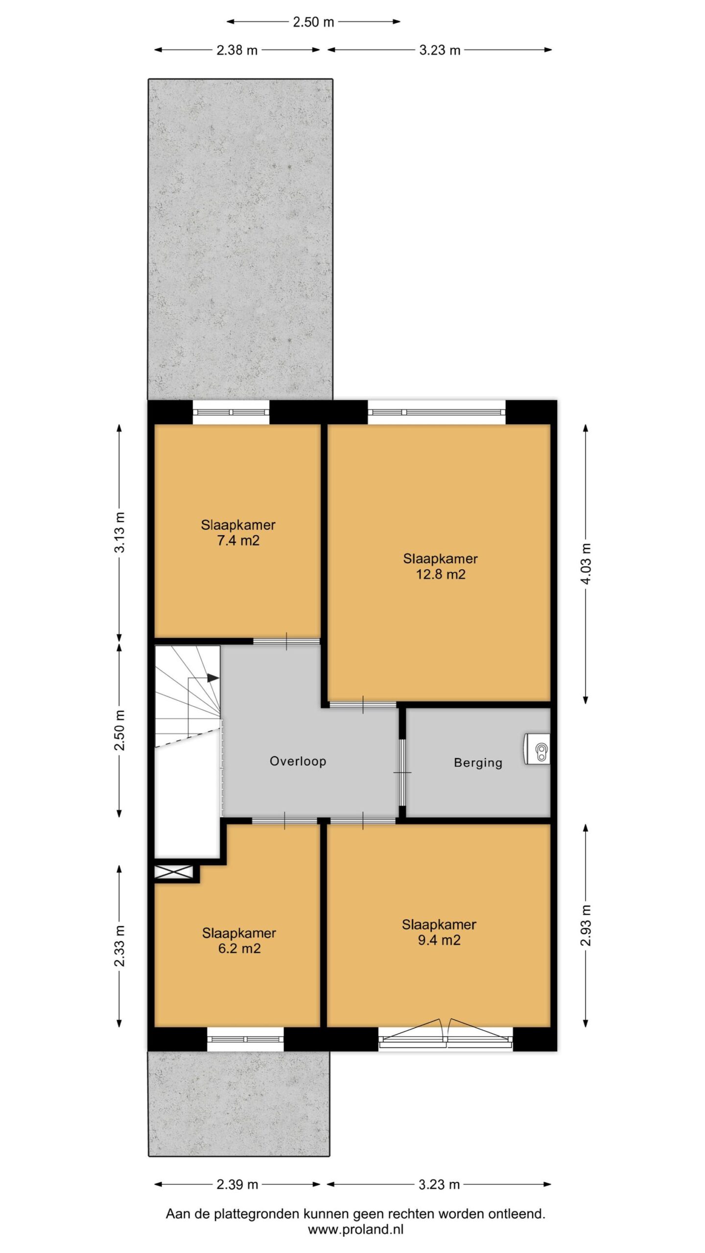
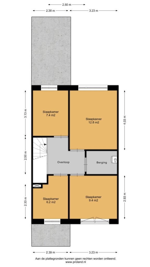
Verdieping:
Middels vaste trap te bereiken overloop met aangrenzend slaapkamer (ca. 9,5 m²), slaapkamer (ca. 6,0 m²), technische ruimte (ca. 3 m²), slaapkamer (ca. 13 m²) en slaapkamer (ca. 7,5 m²).

Extra informatie:
- Huurprijs €1.500,- per maand, exclusief nutskosten, tv en internet;
- Energielabel A++++;
- Er wordt een waarborgsom van 2 maanden huur gehanteerd in de huurovereenkomst;
- Huisdieren en roken niet toegestaan;
- Een huurcheck is onderdeel van de selectieprocedure;
- Verwarming middels warmtepomp;
- Vloerverwarming in alle ruimtes (per ruimte te regelen);
- Warmwatervoorziening middels buffervat;
- Wtw-installatie;
- Voorzien van kunststof kozijnen en deuren met HR+++ beglazing;
- Voorzien van 9 zonnepanelen;
- Gehele woonhuis is voorzien van laminaatvloeren;
- Alle ramen zijn voorzien van rolgordijnen;
- Verhuur voor tijdelijke huisvesting is mogelijk, doch dan zal de huurprijs in overleg met verhuurder worden verhoogd tot een nader overeen te komen bedrag.

Algemeen

  • StatusVerhuurd
  • Huurprijs€ 1.500,- p/m
  • AanvaardingIn overleg

Bouwvorm

  • Soort objectWoonhuis
  • Soort woningEengezinswoning
  • Type woningTussenwoning
  • Bouwjaar2025
  • BouwvormBestaande bouw
  • LiggingenIn woonwijk

Indeling

  • Woonoppervlakte103 m2
  • Perceeloppervlakte186 m2
  • Inhoud404 m3
  • Aantal kamers6
  • Aantal slaapkamers5

Energie

  • EnergieklasseA++++
  • VerwarmingWarmtepomp, Warmte terugwininstallatie
  • WarmwaterElektrische boiler eigendom
  • IsolatieVolledig geïsoleerd
  • CombiketelNee

Buitenruimte

  • TuinAchtertuin, Voortuin
  • HoofdtuinAchtertuin
  • Oppervlakte83 m2
  • Ligging hoofdtuinOost
  • AchteromJa

Bergruimte

  • Schuur / BergingInpandig
  • Totaal aantal1

Parkeergelegenheid

  • Parkeer faciliteitenOpenbaar parkeren
  • GarageGeen garage

Dak

  • Soort dakPlat dak

Overig

  • Permanente bewoningJa
  • Onderhoud binnenGoed tot uitstekend
  • Onderhoud buitenGoed tot uitstekend
  • Huidig gebruikWoonruimte
  • Huidige bestemmingWoonruimte

Delfzijl

Kerkstraat 25
9934 CE Delfzijl
+31596 630 920

Vergelijkbare woningen

Verhuurd
Hoofdafbeelding Solwerderstraat 42

Solwerderstraat 42

9901 BE Appingedam

€ 1.390,- p/m

Verhuurd
Hoofdafbeelding Statenlaan 8

Statenlaan 8

9901 HB Appingedam

€ 1.800,- p/m

Verhuurd
Hoofdafbeelding Opwierderweg 84

Opwierderweg 84

9902 RE Appingedam

€ 2.150,- p/m

Brandsma de Jong – Delfzijl

Vragen?

Wij helpen u graag