Hoofdafbeelding Statenlaan 8
Foto 2
Foto
Home Aanbod Statenlaan 8

Statenlaan 8

9901 HB Appingedam

€ 1.800,- p/m

* BESCHIKBAAR VOOR REGULIERE VERHUUR EN TIJDELIJKE HUISVESTING *

De wijk "Tjamsweer" in Appingedam ondergaat momenteel een grootschalige herstructurering waarbij de woningvoorraad in het kader van de Sloop-/nieuwbouwregeling is vernieuwd. Eén van de woningen die van dit project deel uitmaakt is de tussenwoning aan de Statenlaan 8 die onlangs in januari 2026 is opgeleverd. De nieuwe woning is herbouwd met 4 slaapkamers en een garage, waarbij het gezien de bouwaard uiteraard als duurzaam te kenmerken is. Niet alleen op het gebied van isolatie, waaronder kunststof kozijnen met triple glas. Ook als gevolg van de aanwezigheid van zonnepanelen en het gasloze karakter ervan. Deze ruime gezinswoning wordt namelijk verwarmd middels een lucht/water warmtepomp. De woning is volledig instapklaar, zodat u uw eigen meubels erin kunt zetten en zorgeloos kunt wonen!

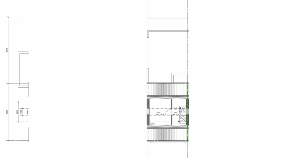
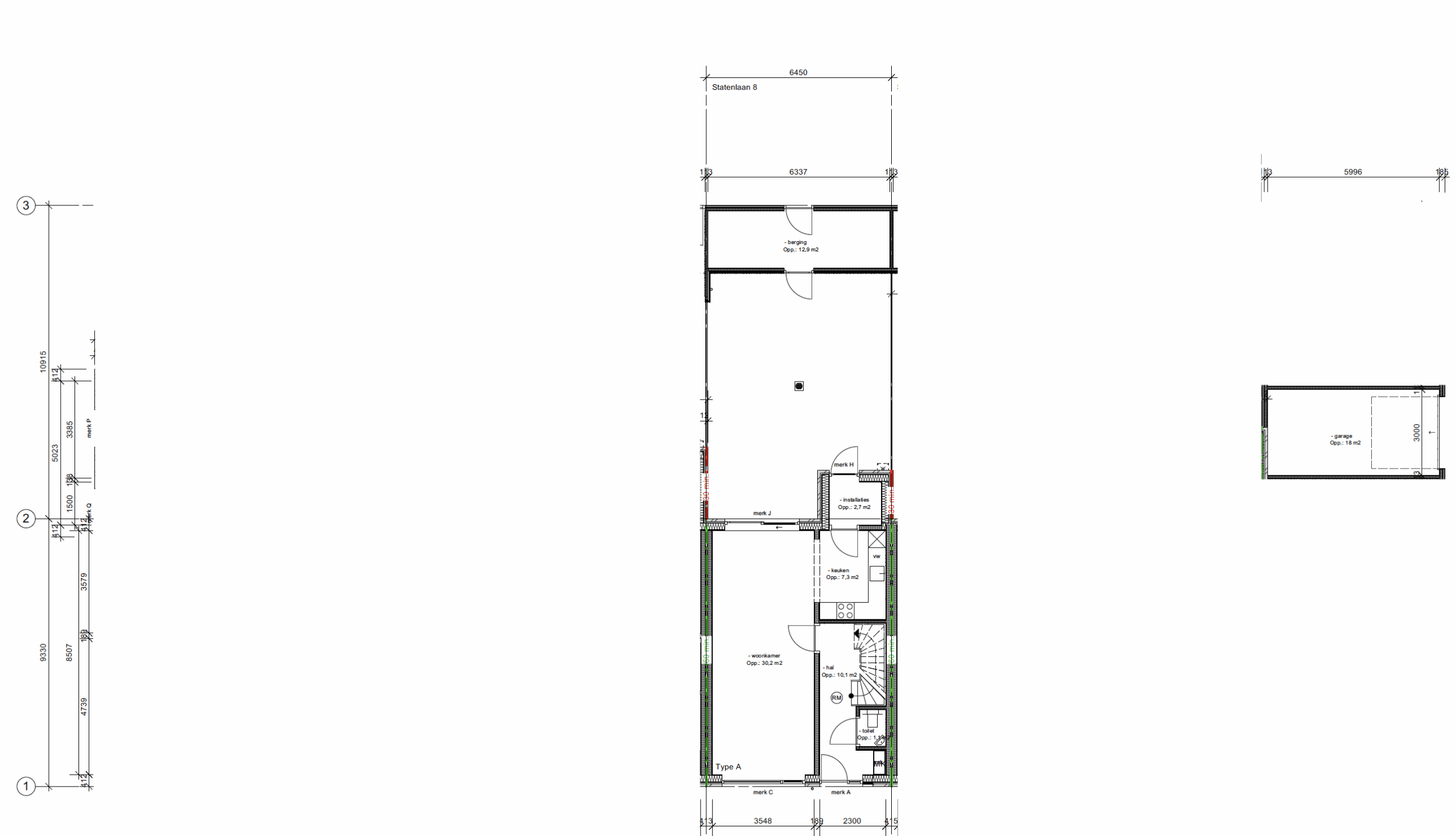
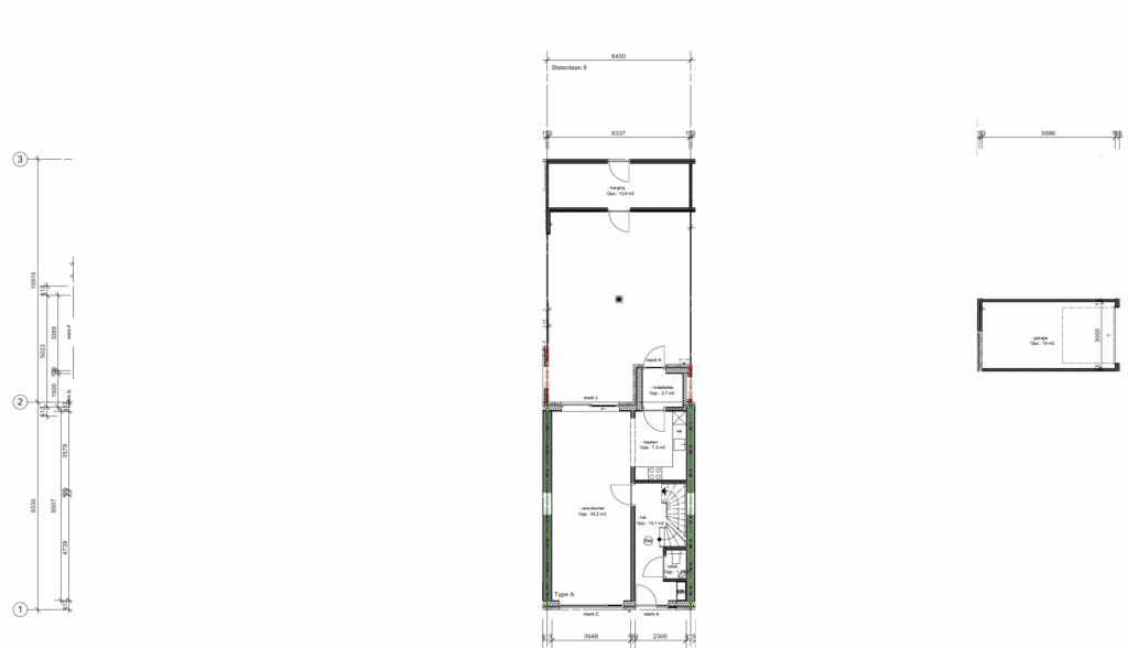
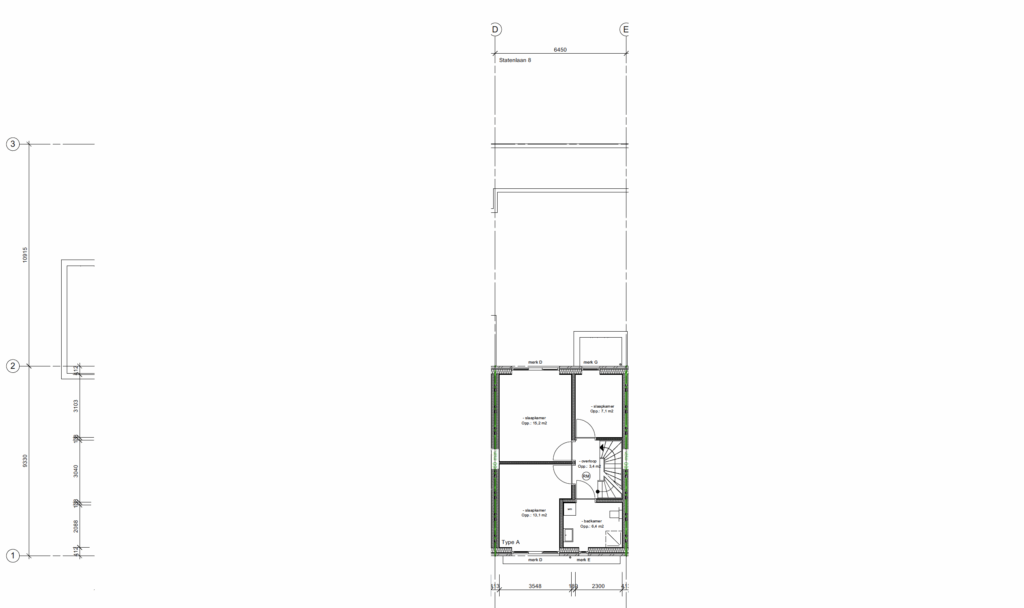
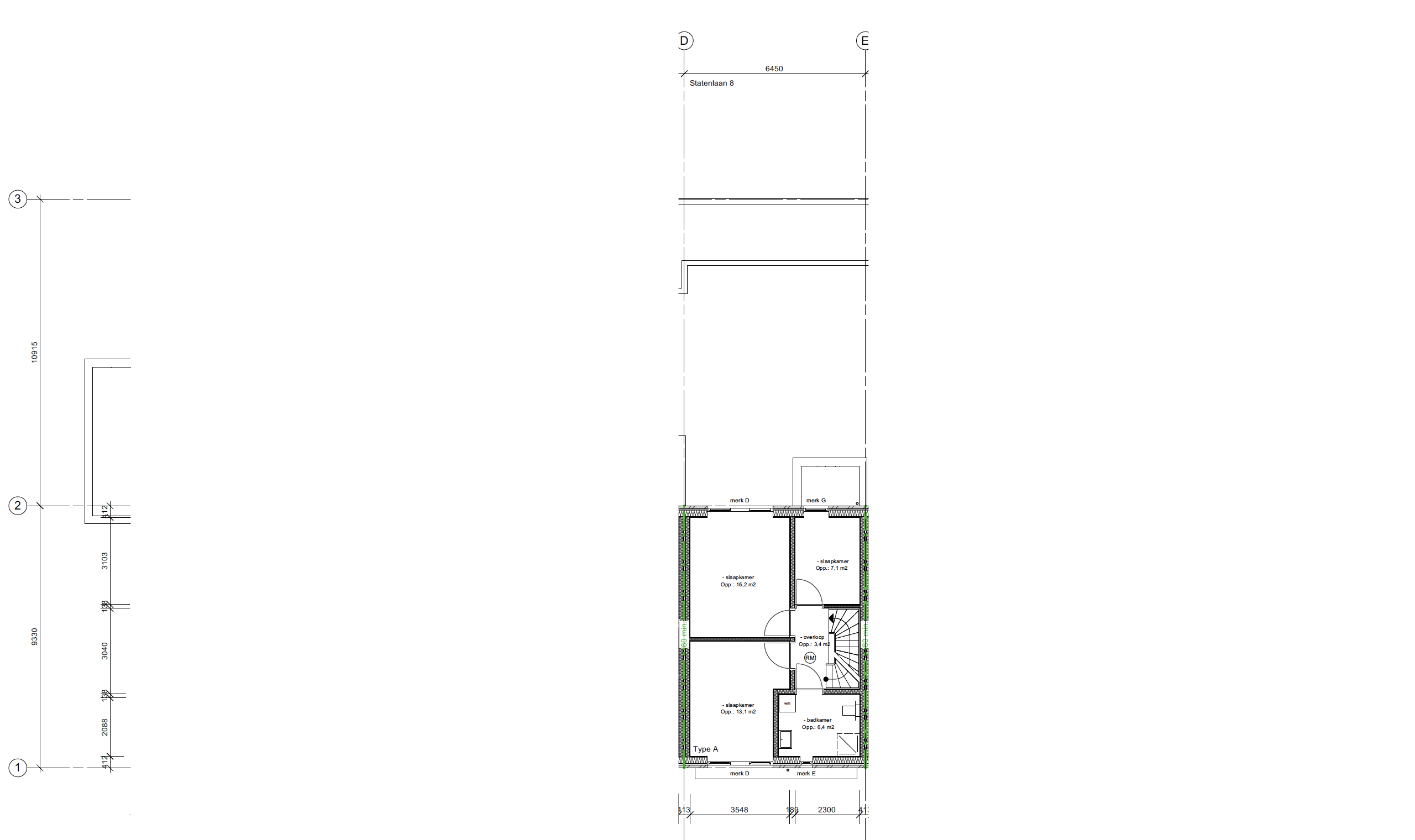
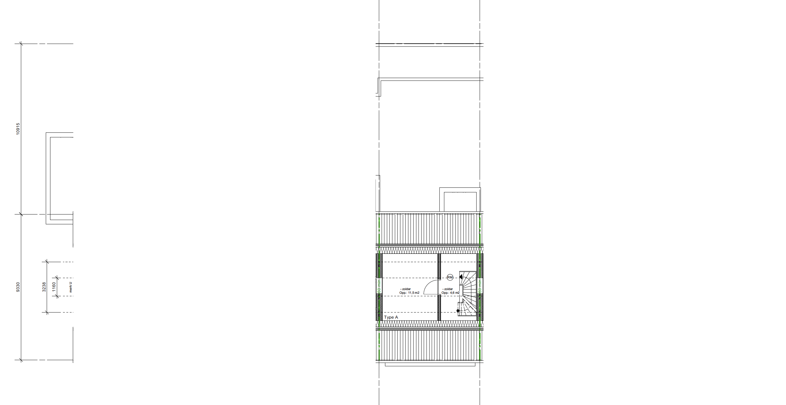
Indeling:
Begane grond:
Entree/hal met meterkast, toilet, royale trapkast en opgang naar de verdieping, woonkamer (ca. 30 m²), half open keuken (ca. 7,5 m²; met hoekopstelling voorzien van inbouwapparatuur en achterentree (ca. 2,5 m² met installaties).

Eerste verdieping:
Middels vaste trap te bereiken overloop met opgang naar de zolderverdieping en aangrenzend slaapkamer (ca. 7 m²), slaapkamer (ca. 15 m²), slaapkamer (ca. 13 m²) en badkamer (ca. 6,5 m²; met douche, wastafel en toilet).

Tweede verdieping:
Middels vaste trap te bereiken overloop (met witgoedaansluiting) met aangrenzende zolderkamer (ca. 11,5 m²).

Buitenruimte:
- Vrijstaande houten berging (ca. 13 m²; met entree naar de tuin);
- Garage (ca. 18 m²; met elektrische deur en oplaadpunt voor een elektrische auto).

Bijzonderheden:
- Huurprijs €1.800,- per maand, exclusief nutskosten, tv en internet;
- Energielabel is nog niet klaar, deze zal naar verwachting minimaal A+++ zijn;
- Voorzien van 4 zonnepanelen (450 Wp/stuk);
- Geheel voorzien van kunststof kozijnen, ramen en deuren;
- Stoffering: voorzien van pvc-vloeren en raambekleding;
- Woning is op de begane grond voorzien van vloerverwarming;
- Achtertuin (ca. 50 m²) is volledig verhard en gesitueerd op het oosten;
- Er wordt een waarborgsom van 2 maanden huur gehanteerd in de huurovereenkomst;
- NB: De huurprijs van €1.800,- is gebaseerd op reguliere verhuur. In dat geval zal er ook een huurderscheck plaatsvinden. Verhuur voor tijdelijke huisvesting (wisselwoning) is mogelijk, doch dan zal de huurprijs in overleg met verhuurder worden verhoogd tot een nader overeen te komen bedrag en komt de huurderscheck te vervallen.

Algemeen

  • StatusVerhuurd
  • Huurprijs€ 1.800,- p/m
  • AanvaardingIn overleg

Bouwvorm

  • Soort objectWoonhuis
  • Soort woningEengezinswoning
  • Type woningTussenwoning
  • Bouwjaar2026
  • BouwvormBestaande bouw
  • LiggingenIn woonwijk

Indeling

  • Woonoppervlakte122 m2
  • Perceeloppervlakte208 m2
  • Inhoud442 m3
  • Aantal kamers5
  • Aantal slaapkamers4
  • Aantal badkamers1

Energie

  • VerwarmingVloerverwarming gedeeltelijk, Warmtepomp
  • WarmwaterElektrische boiler eigendom
  • IsolatieVolledig geïsoleerd, HR glas
  • CombiketelNee

Buitenruimte

  • TuinAchtertuin, Voortuin
  • HoofdtuinAchtertuin
  • Oppervlakte50 m2
  • Ligging hoofdtuinNoordwest
  • AchteromJa
  • Kwaliteit tuinNormaal

Bergruimte

  • Schuur / BergingVrijstaand hout
  • Totaal aantal1

Parkeergelegenheid

  • Parkeer faciliteitenOpenbaar parkeren, Op eigen terrein
  • GarageGaragebox
  • Capaciteit1
  • Garages1

Dak

  • Soort dakDwarskap
  • Materiaal dakPannen

Overig

  • Permanente bewoningJa
  • Onderhoud binnenUitstekend
  • Onderhoud buitenUitstekend
  • Huidig gebruikWoonruimte
  • Huidige bestemmingWoonruimte

Delfzijl

Kerkstraat 25
9934 CE Delfzijl
+31596 630 920

Vergelijkbare woningen

Verhuurd
Hoofdafbeelding Solwerderstraat 42

Solwerderstraat 42

9901 BE Appingedam

€ 1.390,- p/m

Verhuurd
Hoofdafbeelding Heiman Akkerstraat 7

Heiman Akkerstraat 7

9902 GE Appingedam

€ 1.500,- p/m

Verhuurd
Hoofdafbeelding Opwierderweg 86

Opwierderweg 86

9902 RE Appingedam

€ 2.450,- p/m

Hoofdafbeelding Opwierderweg 84

Opwierderweg 84

9902 RE Appingedam

€ 2.150,- p/m

Brandsma de Jong – Delfzijl

Vragen?

Wij helpen u graag